Catskills Real Estate
Ulster County Homes For Sale Saugerties, NY

$

645,000

SOLD

Farmhouse 67

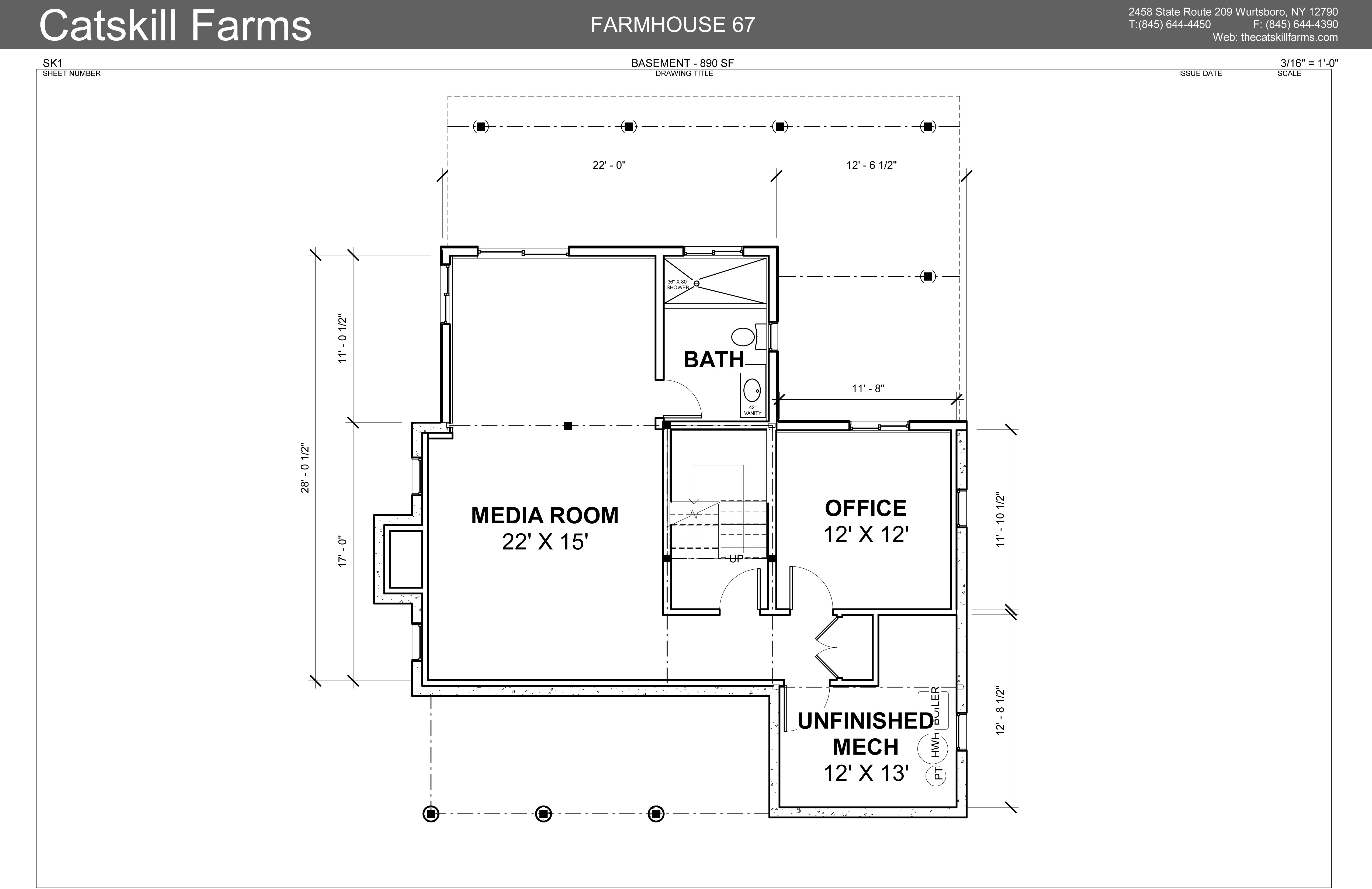
Farmhouse 67, a 1600 sq ft, twin-gables, classic, and right-sized new farmhouse in Saugerties, NY, can be designed for disparate and varied tastes. Close to Hunter/Windham, Saugerties, Woodstock, Kingston, and literally 7 minutes off Thruway. 3 bedrooms on the main two floors, including a first-floor bedroom with direct bathroom access. Main floor shared with kitchen, dining and living room, with large wood-burning fireplace. Ground floor/basement adds another 800 sq ft of living including an office/bedroom/Peleton room, bathroom and large open media space with loads of windows. All in this 2400 sq ft home on 2 acres by design/build company Catskill Farms checks a lot of boxes.

This home is one of 3 homes being built on adjoining building lots.  Details include fireplaces, screened porches, open flow floor plans and too many sharp details to count. This home is located close to the ski villages of Hunter and Windham, and the bustling hamlets of Woodstock, Saugerties and Kingston.

Catskill Farms has delivered over 275 homes in the Catskills real estate area over the past 20 years, augmenting, adding to, and enhancing the architectural landscape of Hudson Valley Real Estate.  Our new homes find a sweet spot between form and function, satisfying the quality and creativity of our design-minded clients, as well as their need for speed. Our homes for sale in the Catskills have always been a hot ticket since the first one in 2003.  Defined by an intangible emotional pull they radiate, these houses are truly homes, providing safety, comfort, and a great palette for the sharp interior design talents of our typical clients.

This home and land pairing is located on a terrific piece of Ulster County real estate. Ulster County has been the go-to area for homeowners and makers alike for decades. Starting with the Birdcliffe Arts Colony -- hosting artists and musicians like Bob Dylan, The Band, and others. The area now hosts hard to beat towns like Woodstock, Saugerties, Stone Ridge, and Phoenicia, as well as areas such as Kerhonkson, Accord, and Hurley.

Inquire About This Property

Thank you for reaching out.

Check out designs at Our Homes



Your Land, Our Homes

Do you own land? Click here for quick info on getting started with Catskill Farms.
Building on Your Land
Oops! Something went wrong while submitting the form.

Details

Address:
152 Rivka Rd.
House Style:
Farmhouses
Style Option:
Front Dormer Farmhouse
County:
Ulster County Homes For Sale
Town:
Saugerties, NY
Beds:
4
Baths:
3
Square Footage:
2578
+
Acreage:
2
+
Inquire
Contact Us

Details

Address:
152 Rivka Rd.
House Style:
Farmhouses
Style Option:
Front Dormer Farmhouse
County:
Ulster County Homes For Sale
Town:
Saugerties, NY
Acreage:
2
Beds:
4
Baths:
3
Square Footage:
2,578
*
* Includes finished basement.

Floorplans

No items found.

Location

Similar homes

Our Home Designs

About this Style