Catskills Real Estate
Sullivan County Homes For Sale Eldred, NY

$

725,000

SOLD

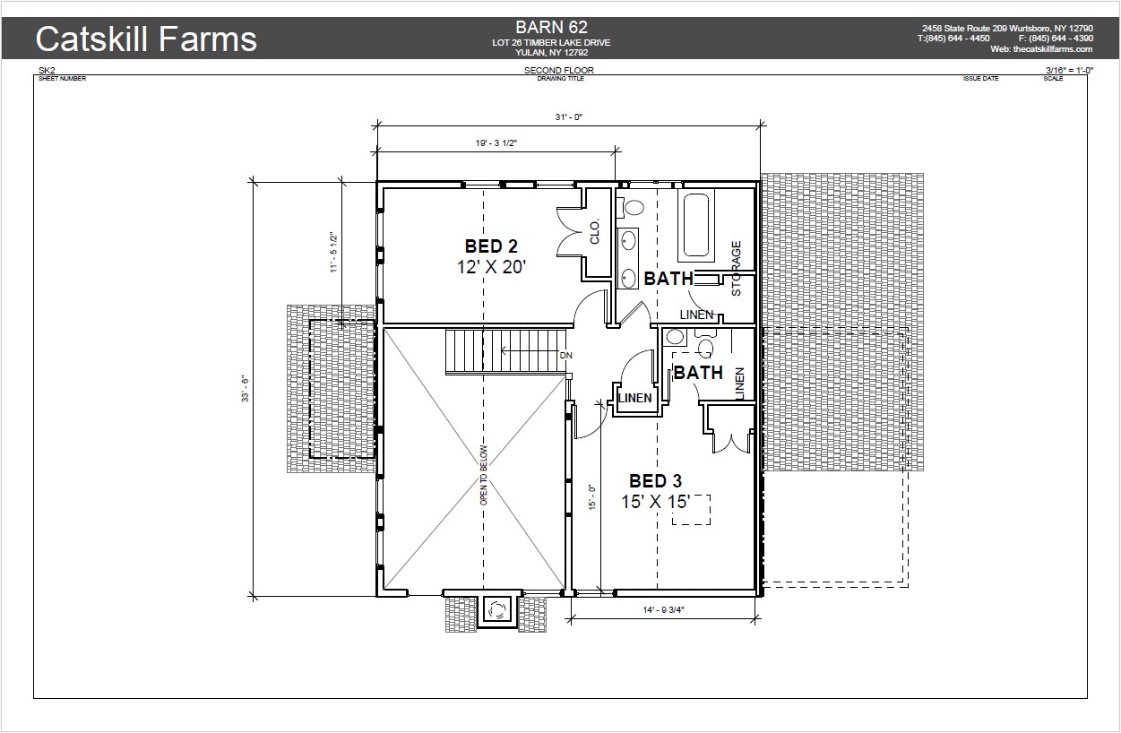
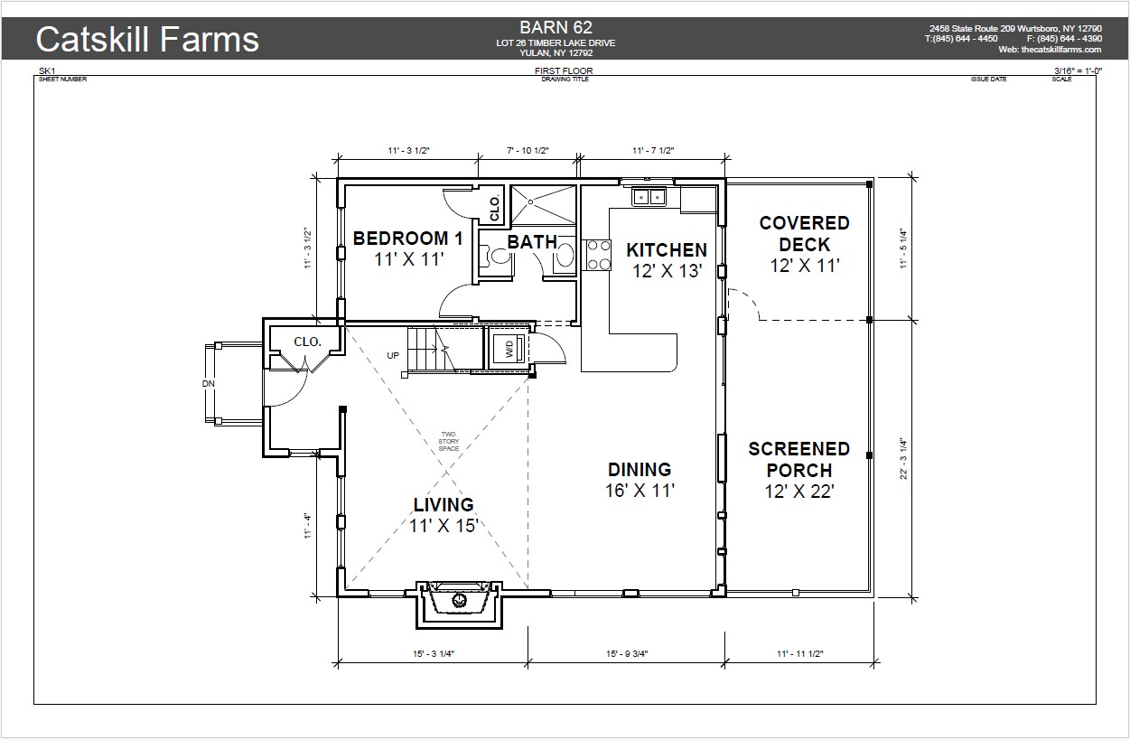
Barn 62, 5.63 Acres, Eldred NY

Our Perfect Barn design makes a reappearance on a building lot just outside of Barryville with lake rights to a beautiful body of water. This 1900 sq ft 3 bed 2.5 bath home with porch space to spare will provide shelter from the storm for some lucky family.

Inquire About This Property

Thank you for reaching out.

Check out designs at Our Homes



Your Land, Our Homes

Do you own land? Click here for quick info on getting started with Catskill Farms.
Building on Your Land
Oops! Something went wrong while submitting the form.

Details

Address:
Lot 26, Timberlake Drive, Eldred NY 12732
House Style:
Barn Homes
Style Option:
Perfect Size Barns
County:
Sullivan County Homes For Sale
Town:
Eldred, NY
Beds:
3
Baths:
2.5
Square Footage:
1911
+
Acreage:
5
+
Inquire
Contact Us

Details

Address:
Lot 26, Timberlake Drive, Eldred NY 12732
House Style:
Barn Homes
Style Option:
Perfect Size Barns
County:
Sullivan County Homes For Sale
Town:
Eldred, NY
Acreage:
5
Beds:
3
Baths:
2.5
Square Footage:
1,911
*
* Includes finished basement.

Floorplans

No items found.

Location

Similar homes

Our Home Designs

About this Style