Catskills Real Estate
Ulster County Homes For Sale Olivebridge, NY

$

SOLD

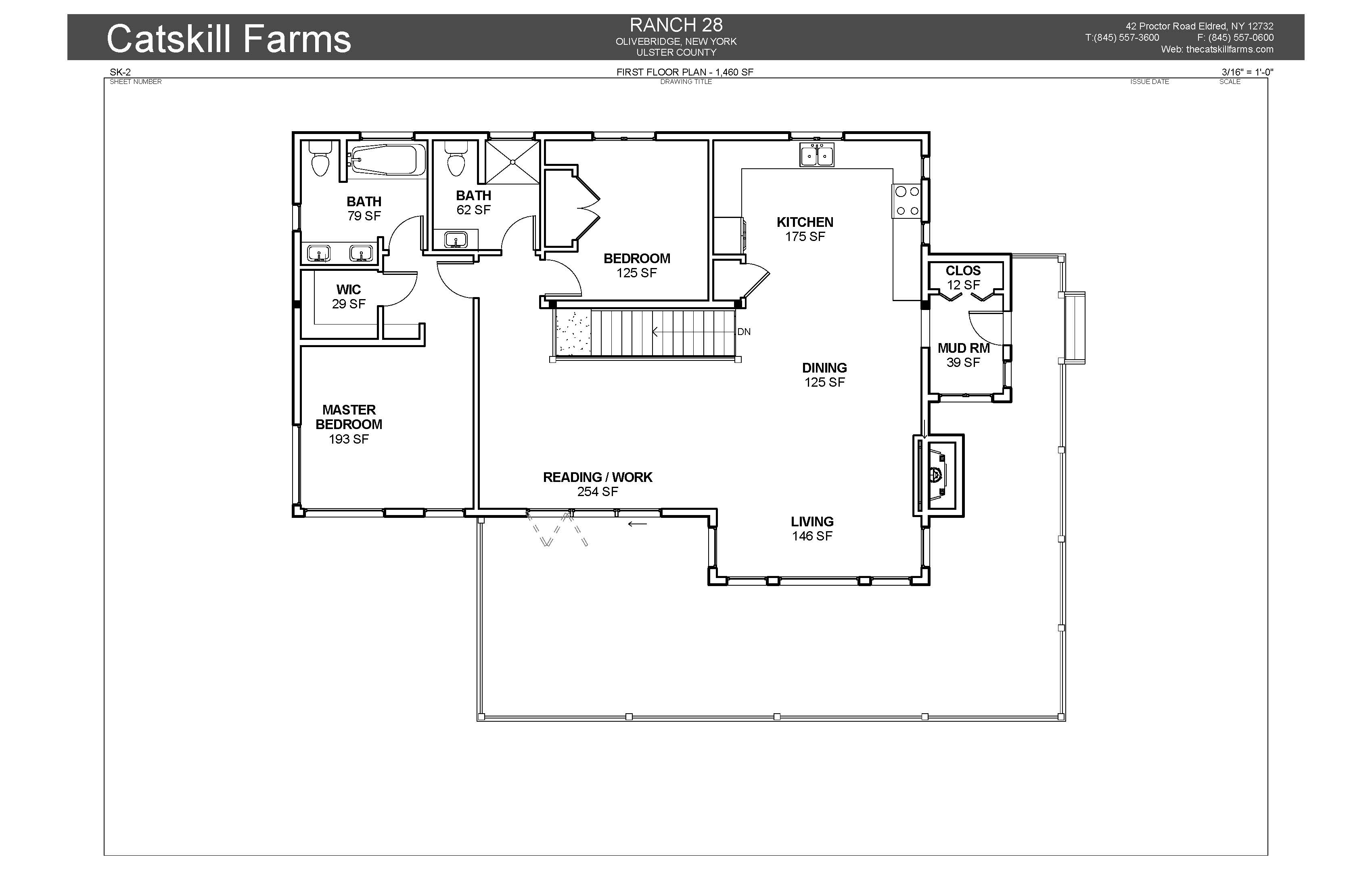
Ranch 28

Ranch 28 is a 2,270 square foot modern ranch built in 2019. This mid-century modern ranch home has three bedrooms, two bathrooms and a large open feel. Built on 5+ acres in Olivebridge, Ulster County, NY.

Catskill Farms has delivered over 275 homes in the Catskills real estate area over the past 20 years, augmenting, adding to, and enhancing the architectural landscape of Hudson Valley Real Estate.  Our new homes find a sweet spot between form and function, satisfying the quality and creativity of our design-minded clients, as well as their need for speed. Our homes for sale in the Catskills have always been a hot ticket since the first one in 2003.  Defined by an intangible emotional pull they radiate, these houses are truly homes, providing safety, comfort, and a great palette for the sharp interior design talents of our typical clients.

This home and land pairing is located on a terrific piece of Ulster County real estate. Ulster County has been the go-to area for homeowners and makers alike for decades. Starting with the Birdcliffe Arts Colony -- hosting artists and musicians like Bob Dylan, The Band, and others. The area now hosts hard to beat towns like Woodstock, Saugerties, Stone Ridge, and Phoenicia, as well as areas such as Kerhonkson, Accord, and Hurley.

Inquire About This Property

Thank you for reaching out.

Check out designs at Our Homes



Your Land, Our Homes

Do you own land? Click here for quick info on getting started with Catskill Farms.
Building on Your Land
Oops! Something went wrong while submitting the form.

Details

Address:
105 Sheldon Hill Rd.
House Style:
Modern Ranches
Style Option:
Largest Ranch
County:
Ulster County Homes For Sale
Town:
Olivebridge, NY
Beds:
3
Baths:
3
Square Footage:
2270
+
Acreage:
5
+
Inquire
Contact Us

Details

Address:
105 Sheldon Hill Rd.
House Style:
Modern Ranches
Style Option:
Largest Ranch
County:
Ulster County Homes For Sale
Town:
Olivebridge, NY
Acreage:
5
Beds:
3
Baths:
3
Square Footage:
2,270
*
* Includes finished basement.

Floorplans

No items found.

Location

Similar homes

Our Home Designs

About this Style