Catskills Real Estate
Ulster County Homes For Sale Olivebridge, NY

$

716,000

SOLD

Farmhouse 30

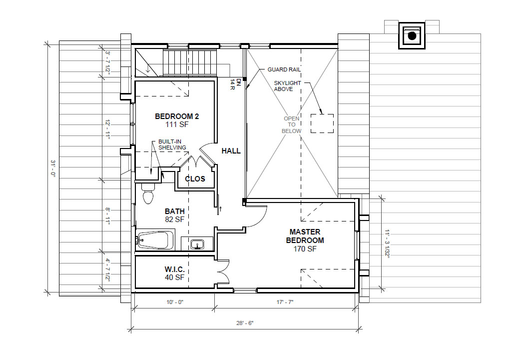
Farmhouse 30, built in 2015, is a modern, front-dormer farmhouse in Olivebridge, Ulster County, NY. This three bedroom, two bathroom home has 1,790 square feet on the first and second floor. The homeowner chose to finish the walk-out ground floor, adding an extra 1,024 square feet of living space and an extra bath -- bringing the total square footage to 2,814. This charming example of Catskills real estate has a modern country asthetic.

Catskill Farms has delivered over 275 homes in the Catskills real estate area over the past 20 years, augmenting, adding to, and enhancing the Hudson Valley’s architectural landscape.  Our new homes find a sweet spot between form and function, satisfying the quality and creativity of our design-minded clients, as well as their need for speed. Our homes for sale in the Catskills have always been a hot ticket since the first one in 2003.  Defined by an intangible emotional pull they radiate, these houses are truly homes, providing safety, comfort, and a great palette for the sharp interior design talents of our typical clients.

This home and land pairing is located on a terrific piece of Ulster County real estate. Ulster County has been the go-to area for homeowners and makers alike for decades. Starting with the Birdcliffe Arts Colony -- hosting artists and musicians like Bob Dylan, The Band, and others. The area now hosts hard to beat towns like Woodstock, Saugerties, Stone Ridge, and Phoenicia, as well as areas such as Kerhonkson, Accord, and Hurley.

Inquire About This Property

Thank you for reaching out.

Check out designs at Our Homes



Your Land, Our Homes

Do you own land? Click here for quick info on getting started with Catskill Farms.
Building on Your Land
Oops! Something went wrong while submitting the form.

Details

Address:
2182 Samsonville Rd.
House Style:
Farmhouses
Style Option:
Front Dormer Farmhouse
County:
Ulster County Homes For Sale
Town:
Olivebridge, NY
Beds:
3
Baths:
2
Square Footage:
1790
+
Acreage:
+
Inquire
Contact Us

Details

Address:
2182 Samsonville Rd.
House Style:
Farmhouses
Style Option:
Front Dormer Farmhouse
County:
Ulster County Homes For Sale
Town:
Olivebridge, NY
Acreage:
Beds:
3
Baths:
2
Square Footage:
1,790
*
* Includes finished basement.

Floorplans

No items found.

Location

Similar homes

Our Home Designs

About this Style