Catskills Real Estate
Sullivan County Homes For Sale Narrowsburg, NY

$

379,000

SOLD

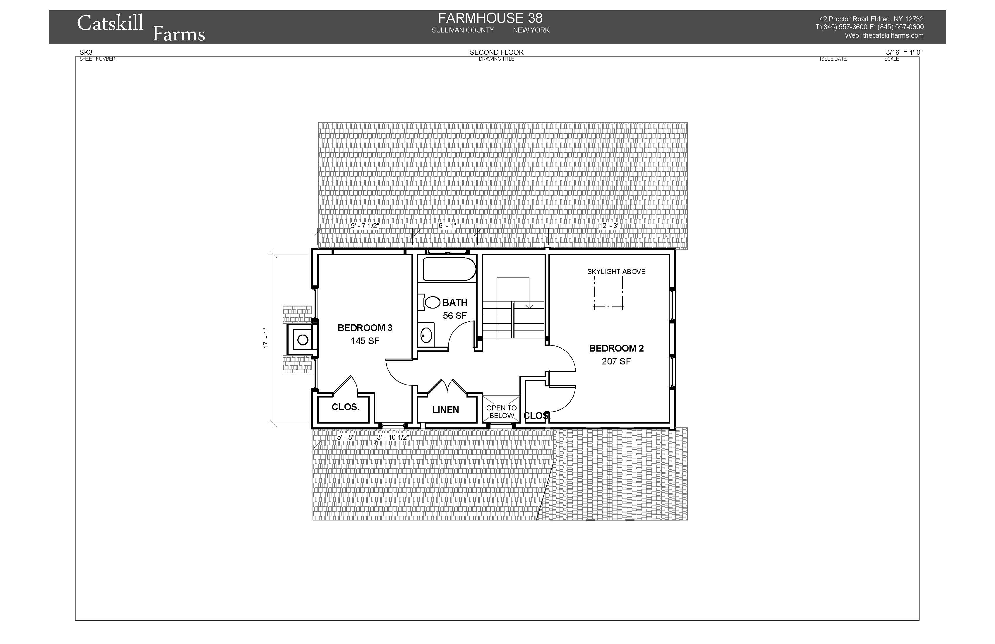
Farmhouse 38

Farmhouse 38 is a three bedroom, two bath, front dormer farmhouse in Narrowsburg, Sullivan County, NY. This 1,548 square foot, modern farmhouse was built in 2016 on ten acres of Sullivan Catskills real estate.

Catskill Farms has delivered over 275 homes in the Catskills real estate area over the past 20 years, augmenting, adding to, and enhancing the architectural landscape of Hudson Valley Real Estate.  Our new homes find a sweet spot between form and function, satisfying the quality and creativity of our design-minded clients, as well as their need for speed. Our homes for sale in the Catskills have always been a hot ticket since the first one in 2003.  Defined by an intangible emotional pull they radiate, these houses are truly homes, providing safety, comfort, and a great palette for the sharp interior design talents of our typical clients.

This home and land pairing is located on a fine piece of Sullivan County real estate.  Sullivan County is best known for its lack of density, value for the dollar, and the towns of Narrowsburg, Callicoon, Livingston Manor, Barryville, Bethel, and more.  Ride your bike on roads without cars, find your favorite swimming hole on the Delaware River, and spend your evenings watching the sunset and stars shine with nary another light in sight.

Inquire About This Property

Thank you for reaching out.

Check out designs at Our Homes



Your Land, Our Homes

Do you own land? Click here for quick info on getting started with Catskill Farms.
Building on Your Land
Oops! Something went wrong while submitting the form.

Details

Address:
245 Mathias Weiden Drive
House Style:
Farmhouses
Style Option:
Front Dormer Farmhouse
County:
Sullivan County Homes For Sale
Town:
Narrowsburg, NY
Beds:
3
Baths:
2
Square Footage:
1548
+
Acreage:
10
+
Inquire
Contact Us

Details

Address:
245 Mathias Weiden Drive
House Style:
Farmhouses
Style Option:
Front Dormer Farmhouse
County:
Sullivan County Homes For Sale
Town:
Narrowsburg, NY
Acreage:
10
Beds:
3
Baths:
2
Square Footage:
1,548
*
* Includes finished basement.

Floorplans

No items found.

Location

Similar homes

Our Home Designs

About this Style